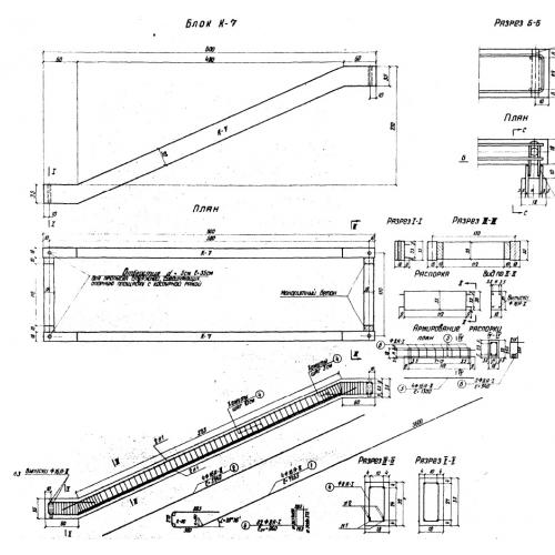
К 7
Характеристики изделия:
| Параметр | Значение |
|---|---|
| длина | 6000 мм |
| ширина | 180 мм |
| высота | 2450 мм |
| масса | 1000 кг |
| нормативный документ | ТП 501-166 |
Цена:
Рассчитать стоимостьК 7 Косоуры по Типовому проекту ТП 501-166.
| Параметр | Значение |
|---|---|
| длина | 6000 мм |
| ширина | 180 мм |
| высота | 2450 мм |
| масса | 1000 кг |
| нормативный документ | ТП 501-166 |
К 7 Косоуры по Типовому проекту ТП 501-166.
