Ф
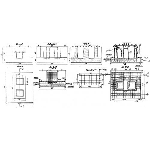
Характеристики изделия:
| Параметр | Значение |
|---|---|
| длина | 2400 мм |
| ширина | 2700 мм |
| высота | 1300 мм |
| масса | 10800 кг |
| нормативный документ | ТП 501-166 |
Цена:
Рассчитать стоимостьФ Фундаменты по Типовому проекту ТП 501-166.
| Параметр | Значение |
|---|---|
| длина | 2400 мм |
| ширина | 2700 мм |
| высота | 1300 мм |
| масса | 10800 кг |
| нормативный документ | ТП 501-166 |
Ф Фундаменты по Типовому проекту ТП 501-166.
