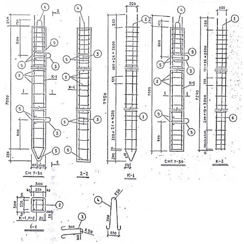
СМ 7-30

Чертеж изделия:
Характеристики изделия:
ПараметрЗначение
длина7500 мм
ширина300 мм
высота300 мм
вес1580 кг
серияРМ 2-77

СМ 7-30 Сваи по серии РМ 7-30.