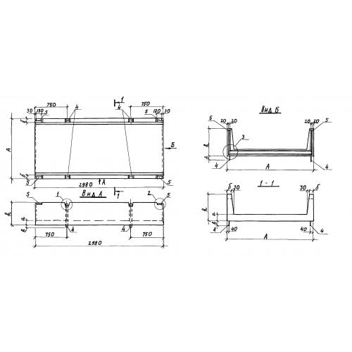
ЛК 298.180.52

Чертеж изделия:
Характеристики изделия:
ПараметрЗначение
длина2980 мм
ширина1800 мм
высота520 мм
вес2130 кг
серия3.818.9-2

ЛК 298.180.52 Лотки для каналов навозоудаления по серии 3.818.9-2.