П 35.20
Характеристики изделия:
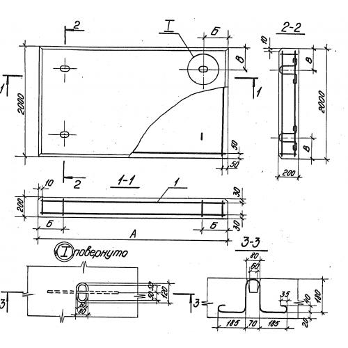
| Параметр | Значение |
|---|---|
| длина | 3500 мм |
| ширина | 2000 мм |
| высота | 200 мм |
| масса | 3500 кг |
| нормативный документ | Серия 3.504.1-20 |
Цена:
Рассчитать стоимостьП 35.20 Плиты покрытия сборные по Серии 3.504.1-20.
| Параметр | Значение |
|---|---|
| длина | 3500 мм |
| ширина | 2000 мм |
| высота | 200 мм |
| масса | 3500 кг |
| нормативный документ | Серия 3.504.1-20 |
П 35.20 Плиты покрытия сборные по Серии 3.504.1-20.
