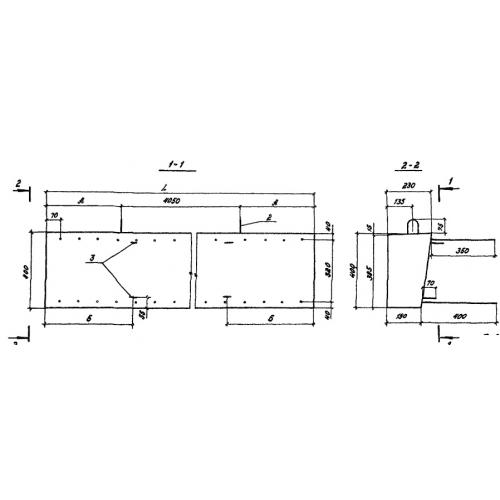
РН 4

Чертеж изделия:
Характеристики изделия:
ПараметрЗначение
длина7120 мм
ширина230 мм
высота400 мм
вес1500 кг
серия3.503.1-75

РН 4 Блоки насадки по серии 3.503.1-75.