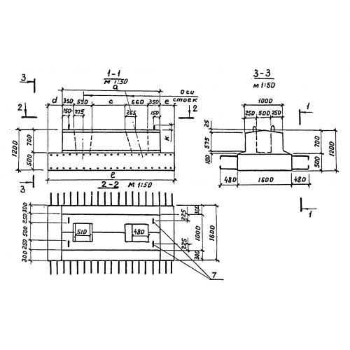
Ф-450

Чертеж изделия:
Характеристики изделия:
ПараметрЗначение
длина4500 мм
ширина2560 мм
высота1200 мм
вес14300 кг
серия3.503.1-57

Ф-450 Блоки фундамента по серии 3.503.1-57.