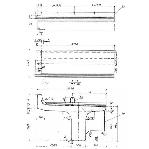
Б 135

Чертеж изделия:
Характеристики изделия:
ПараметрЗначение
длина13500 мм
ширина2420 мм
высота1800 мм
вес41000 кг
Серия3.501.1-146

Б 135 Балки ребристые пролетных строений по Серии 3.501.1-146.