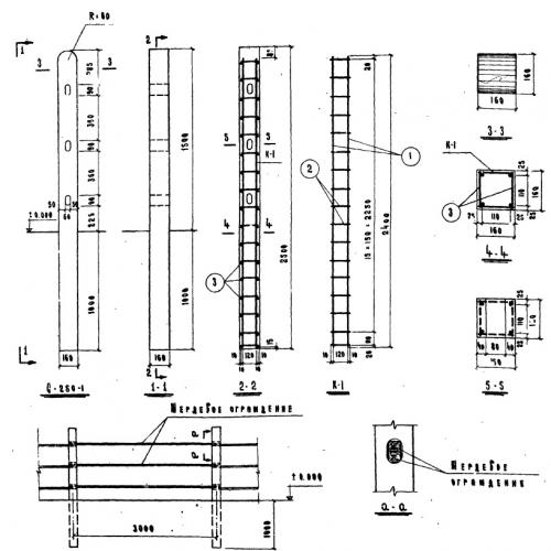
С 250
Характеристики изделия:
| Параметр | Значение |
|---|---|
| длина | 2500 мм |
| ширина | 160 мм |
| высота | 160 мм |
| вес | 152,5 кг |
| серия | 2.800-2 |
Цена:
Рассчитать стоимостьС 250 Стойки железобетонные с крестообразным поперечным сечением по серии 2.800-2.
| Параметр | Значение |
|---|---|
| длина | 2500 мм |
| ширина | 160 мм |
| высота | 160 мм |
| вес | 152,5 кг |
| серия | 2.800-2 |
С 250 Стойки железобетонные с крестообразным поперечным сечением по серии 2.800-2.
