СФБ 60

Чертеж изделия:
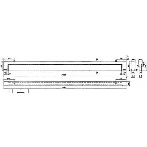
Характеристики изделия:
ПараметрЗначение
длина5980 мм
ширина200 мм
высота450 мм
вес978 кг
серия1.810-1

СФБ 60 Балки фундаментные по серии 1.810-1.