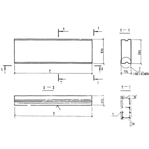
П 39.9.35

Чертеж изделия:
Характеристики изделия:
ПараметрЗначение
длина3870 мм
ширина890 мм
высота350 мм
вес870 кг
серия1.165.1-10

П 39.9.35 Панели покрытия по серии 1.165.1-10.