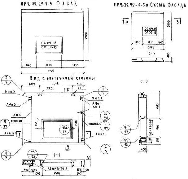
НР2-32.29.4-5л

Чертеж изделия:
Характеристики изделия:
ПараметрЗначение
Длина3195 мм
Ширина400 мм
Высота2900 мм
Масса3960 кг
Нормативный документСерия 1.132-1

НР2-32.29.4-5л   Наружная стеновая панель рядовая по Серии 1.132-1.