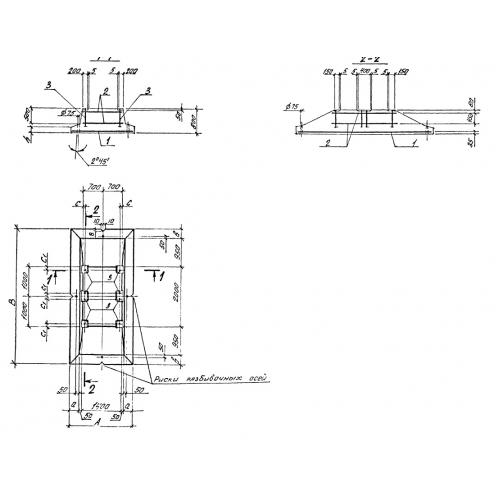
Ф5

Чертеж изделия:
Характеристики изделия:
ПараметрЗначение
длина2100 мм
ширина4500  мм
высота800 мм
вес11950 кг
серия0-221-84

Ф5 Плиты фундаментные по серии 0-122-84.