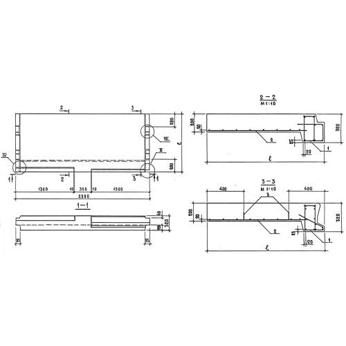
1ЛП 30.22 лестничные площадки плоские
Характеристики изделия:
| Параметр | Значение |
|---|---|
| длина | 2980 мм |
| ширина | 2200 мм |
| высота | 320 мм |
| масса | 3195 кг |
| нормативный документ | ГОСТ 9818-85 |
Цена:
Рассчитать стоимость1ЛП 30.22 Лестничные площадки плоские ГОСТ 9818-85.
| Параметр | Значение |
|---|---|
| длина | 2980 мм |
| ширина | 2200 мм |
| высота | 320 мм |
| масса | 3195 кг |
| нормативный документ | ГОСТ 9818-85 |
1ЛП 30.22 Лестничные площадки плоские ГОСТ 9818-85.
