ЛМ 36.15

Чертеж изделия:
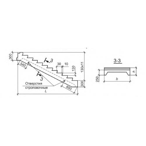
Характеристики изделия:
ПараметрЗначение
длина3600 мм
ширина1490 мм
высота1730 мм
масса1950 кг
нормативный документГОСТ 24155-2016

ЛМ 63.15 Лестничные марши по ГОСТ 24155-2016.